大森運送株式会社
創業昭和37年!安全確実に信頼をお届けします。
メニュー
コンテンツへスキップ
トップページ
企業情報
企業理念
会社概要
会社沿革
保有設備
ニュース
営業所
本社
東北営業所
関東営業所
滋賀営業所
岡山営業所
呉営業所
仁方営業所
徳山営業所
北九州営業所
(有)仁方大森マリーナー
(有)大森配送センター
宮城県倉庫
千葉県倉庫
広島県倉庫
福岡県倉庫
事業内容
車両紹介
特殊輸送
倉庫事業
ユミちゃんガレージ
安全への取り組み
環境への取り組み
プロドライバーの育成
安全活動
採用情報
プライバシーポリシー
トップ
›
ニュース
›
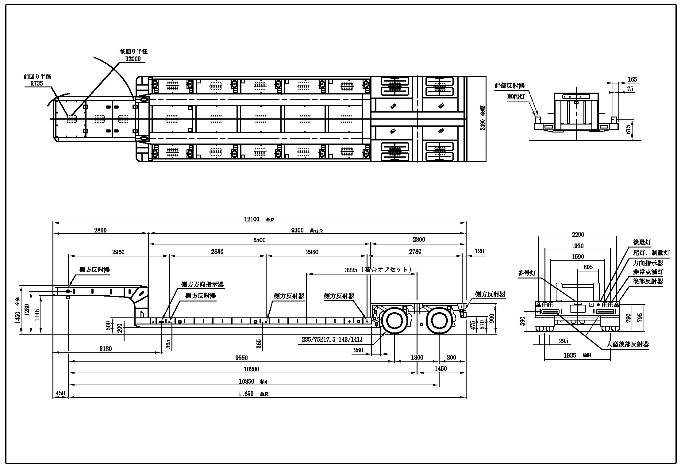
新車紹介-地上高500mm低床エアサス
新車紹介-地上高500mm低床エアサス
地上高500mm低床エアサス
エアサス車
車両重量
5,650
最大積載量
21,000
車両総重量
26,650